Обяви За нас Контакти
Продава 2-СТАЕН
град София, Студентски град
122 518 €
239 624.38 лв.

(2 849 €, 5 572.16 лв./m2)
Не се начислява ДДС
История на цената
Публикувана в 17:43 на 4 март, 2026 год.
Обявата е посетена 166 пъти.
Площ:
43 m2
Етаж:
Партер от 6
Газ:
НЕ
ТEЦ:
НЕ
Строителство:
Тухла, Ще бъде въведен в експлоатация 2026 г.

Описание на имота:


📌 Референтен номер: 2098391.

❗ Революшън Естейт Ви представя двустаен апартамент в комплекс от две сгради С АКТ 14 в ж.к. Студентски град. ❗

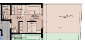
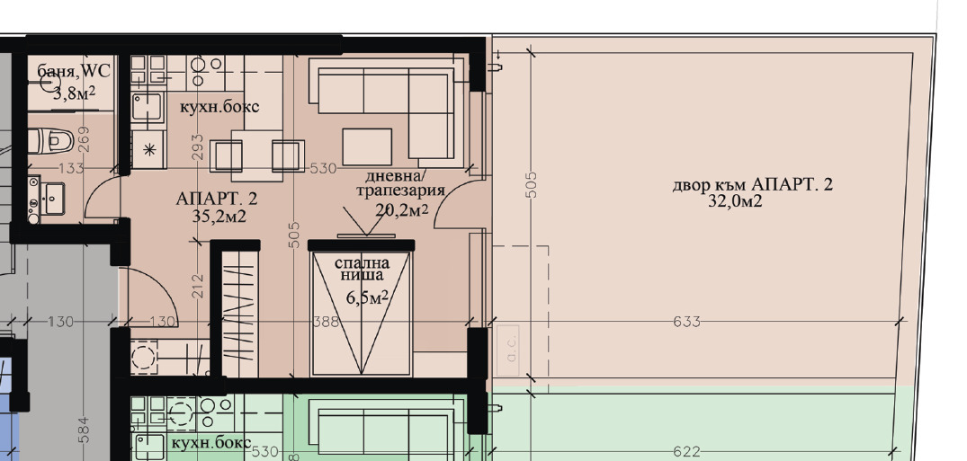
🔷 Квадратура: 43.43 кв.м.
🔷 Етаж: 0 от 6
🔷 Изложение: Изток/Юг.
🔷 Разпределение: входно антре, всекидневна с кухненски бокс и трапезария, спална ниша, баня с тоалетна и двор - 32 кв.м.
🔷 Отопление: електричество.
🔷 Сградите разполагат с подземни гаражи и са проектирани с два общи, свързващи етажа.
🔷 Очаквано завършване: 2026г.

В близост до имота ще намерите:

- Спортна зала 'Христо Ботев'
- ДГ 79 'Слънчице';
- Американски университет в България;
- Медицински център 'ФиХелт';
- Супермаркет 'Фантастико';
- Автобусни спирки.

📞 Информация за горепосочения имот, може да получите чрез формата на запитване или чрез директна връзка с нас на посочения телефон.
Особености
Тухла
Асансьор
С паркинг
Саниран
За контакт:
0899500900
Брокер:
Офис Ново строителство
0899500900
Офис: гр. София, бул. Шипченски проход 18
Още оферти от брокера: Продава | Дава под наем | Купува | Наема
Агенция:
РЕВОЛЮШЪН ЕСТЕЙТ
0899500900
РЕВОЛЮШЪН ЕСТЕЙТ logo
Медал за прослужено време
В imot.bg от 2018 г.
revolutionestate.imot.bg
Адрес:
област София, гр. София, гр. София, бул. Шипченски проход 18
http://www.revolution-estate.bg
ИЗПРАТИ ЗАПИТВАНЕ
ИЗПРАТИ ЗАПИТВАНЕТО

Продава 2-СТАЕН
град София, Студентски град
Обява: 1b177263903464141

122 518 €
239 624.38 лв.
История на цената
(2 849 €, 5 572.16 лв./m2)

Не се начислява ДДС
ЗАПАЗИ ОБЯВАТА

Местоположение: град София, Студентски град

Допълнителни данни за имотите в района и сравнение с други райони

Покажи

Период

и 3 месеца

* Средните цени са определени чрез медианна стойност