Обяви За нас Контакти
Продава 2-СТАЕН
град София, Бояна
280 000 €
547 632.40 лв.

(3 684 €, 7 205.28 лв./m2)
Не се начислява ДДС
История на цената
Коригирана в 9:35 на 19 януари, 2026 год.
Обявата е посетена 263 пъти.
Площ:
76 m2
Етаж:
1-ви от 5
Газ:
ДА
ТEЦ:
НЕ
Строителство:
Тухла, Въведен в експлоатация 2025 г.

Описание на имота:


📌 Референтен номер: 2103272.

❗ Революшън Естейт представя двустаен апартамент С ВКЛЮЧЕНО В ЦЕНАТА ПОДЗЕМНО ПАРКОМЯСТО в затворен комплекс С АКТ 16 в ж.к. Бояна. ❗

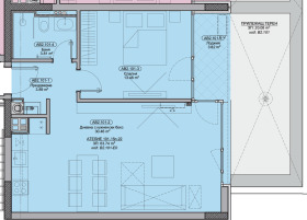
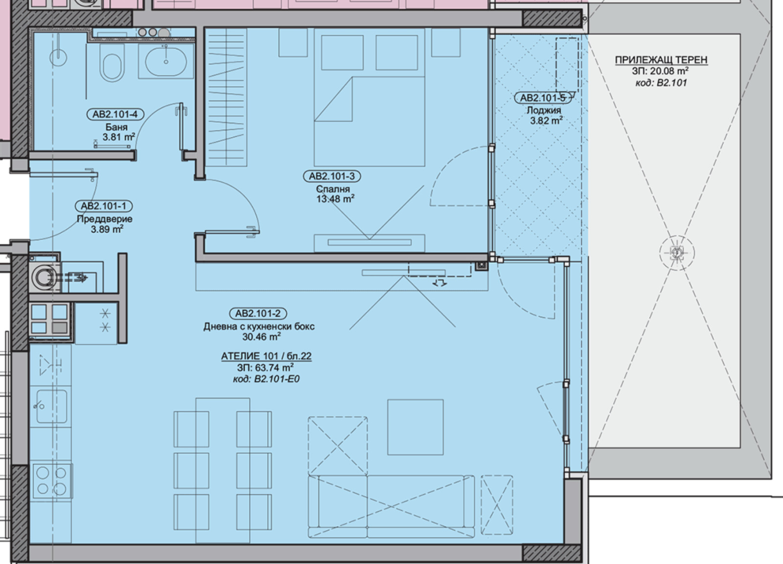
🔷 Квадратура: ЗП - 64.74 кв.м. РЗП -76.34 кв.м.
🔷 Етаж: 1 от 5
🔷 Изложение: Запад/Север.
🔷 Разпределение: преддверие, всекидневна с кухненски бокс, спалня, баня с тоалетна, тераса.
🔷 Отоплението е на газ, посредством газово котле.
🔷 В цената на имота е включено ПОДЗЕМНО ПАРКОМЯСТО!
🔷 Жилището е със статут на ателие.

🏡✨ Комплексът предлага поддържана и организирана среда красиви междублокови пространства, градини с пейки, детски кът, фитнес, ресторант, охрана.

В близост до комплекса ще намерите:

- Подготвително училище: ДГ 112 'Детски свят';
- Автобусна спирка: Киноцентър Бояна на 455 метра.
- Боянска църква;
- Ботаническа градина.

📞 Информация за горепосочения имот, може да получите чрез формата на запитване или чрез директна връзка с нас на посочения телефон.
Особености
Тухла
За контакт:
0899500900
Брокер:
Офис Ново строителство
0899500900
Офис: гр. София, бул. Шипченски проход 18
Още оферти от брокера: Продава | Дава под наем | Купува | Наема
Агенция:
РЕВОЛЮШЪН ЕСТЕЙТ
0899500900
РЕВОЛЮШЪН ЕСТЕЙТ logo
Медал за прослужено време
В imot.bg от 2018 г.
revolutionestate.imot.bg
Адрес:
област София, гр. София, гр. София, бул. Шипченски проход 18
http://www.revolution-estate.bg
ИЗПРАТИ ЗАПИТВАНЕ
ИЗПРАТИ ЗАПИТВАНЕТО

Продава 2-СТАЕН
град София, Бояна
Обява: 1b176615518962548

280 000 €
547 632.40 лв.
История на цената
(3 684 €, 7 205.28 лв./m2)

Не се начислява ДДС
ЗАПАЗИ ОБЯВАТА

Местоположение: град София, Бояна

Допълнителни данни за имотите в района и сравнение с други райони

Покажи

Период

и 2 месеца

* Средните цени са определени чрез медианна стойност